OberkornAppartement
Nous vous présentons en exclusivité cet appartement spacieux et lumineux, idéalement situé dans le charmant village d'Oberkorn, au sein de la commune de Differdange. Offrant un cadre de vie à la fois moderne et paisible, ce bien séduit par ses volumes généreux et sa distribution harmonieuse.
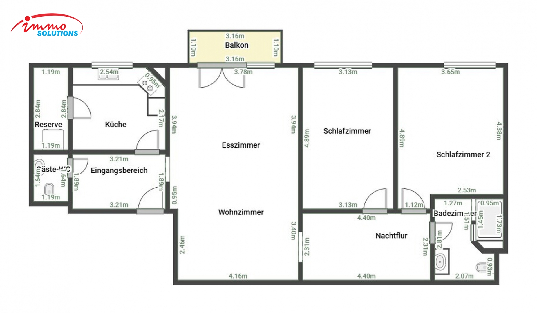
Dès l'entrée, un hall accueillant mène vers un WC séparé ainsi qu'une cuisine individuelle entièrement équipée, agrémentée d'un débarras pratique. Le vaste séjour, combinant salon et salle à manger, s'ouvre sur un agréable balcon, parfait pour profiter des belles journées en toute sérénité.
L'espace nuit se distingue par un très grand hall de nuit, véritable atout de l'appartement, offrant de multiples possibilités d'aménagement — coin bureau, bibliothèque ou espace de rangement supplémentaire. Il dessert deux chambres confortables ainsi qu'une salle de douche contemporaine, élégamment équipée d'une douche à l'italienne.
Une buanderie commune, une cave privative et un garage fermé viennent compléter ce bien, assurant confort et praticité au quotidien.
Au-delà de ses atouts intérieurs, l'appartement bénéficie d'une localisation privilégiée : Oberkorn séduit par son atmosphère conviviale et sa proximité immédiate avec la nature. Forêts, sentiers de promenade et pistes cyclables invitent à la détente et aux activités de plein air, tandis qu'un centre commercial et de nombreuses commodités se trouvent à seulement dix minutes. Grâce à ses liaisons rapides vers Esch-sur-Alzette et Luxembourg-Ville, Oberkorn offre un équilibre parfait entre sérénité résidentielle et accessibilité.
Une opportunité rare à découvrir sans tarder.
Fiche technique
- 20086455
- 100 m2
- 2
- 1
- 1
- à convenir
- 1999
- F
- Cave
- Cuisine équipée
Localisation géographique
Oberkorn, Luxembourg
Ouvrir dans Google Maps
Distance
Cet outil vous permet de calculer la distance entre ce bien et une localité (votre lieu de travail, etc.).
Agent responsable
- Pierre Kreitz
- +352 691 501 203
- pierre.kreitz@immosolutions.lu
Estimation des frais d’acquisition de ce bien
Calculez GRATUITEMENT les frais de notaires pour l'achat de ce bien grâce au site FraisDeNotaire.lu.
FraisDeNotaire.luDemande de contact
Vous souhaitez être recontacté(e) à propos de ce bien ? Rien de plus simple : complétez le formulaire ci-dessous et un agent prendra contact avec vous dans les meilleurs délais.
Ce bien a été consulté 8 fois depuis le 16/12/2025.
