BonnevoieAppartement
Nous vous proposons en exclusivité un bel appartement lumineux d'une superficie d'environ 93 m², situé au rez-de-chaussée surélevé, donc non directement accessible depuis la porte d'entrée.
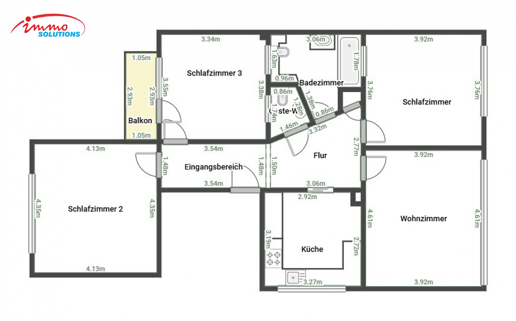
L'appartement se compose d'un grand hall d'entrée, d'une spacieuse et très belle cuisine avec un coin repas convivial, idéal pour prendre le petit-déjeuner ou déjeuner, d'un salon avec salle à manger, de trois chambres dont une avec un beau balcon, d'une jolie salle de bain avec baignoire et double lavabo, ainsi que d'un WC séparé.
S'ajoutent une grande cave (11,16 m²), un emplacement extérieur (12,30 m²) et un grand garage fermé (20,39 m²).
L'appartement bénéficie d'un emplacement absolument central, offrant d'excellentes connexions aux transports publics.
L'ambiance du secteur peut être qualifiée de quartier de ville tranquille : il ne s'agit pas d'une grande avenue à forte circulation, mais d'un environnement agréable, calme et facilement accessible.
Fiche technique
- 20086434
- 93 m2
- 3
- 1
- 1
- à convenir
- 1958
- Cave
- Cuisine équipée
- Bureau
Localisation géographique
Bonnevoie, Luxembourg
Ouvrir dans Google Maps
Distance
Cet outil vous permet de calculer la distance entre ce bien et une localité (votre lieu de travail, etc.).
Agent responsable
- Marc Kreitz
- +352691500677
- marc.kreitz@immosolutions.lu
Estimation des frais d’acquisition de ce bien
Calculez GRATUITEMENT les frais de notaires pour l'achat de ce bien grâce au site FraisDeNotaire.lu.
FraisDeNotaire.luDemande de contact
Vous souhaitez être recontacté(e) à propos de ce bien ? Rien de plus simple : complétez le formulaire ci-dessous et un agent prendra contact avec vous dans les meilleurs délais.
Ce bien a été consulté 1959 fois depuis le 17/10/2025.
