BertrangeMaison
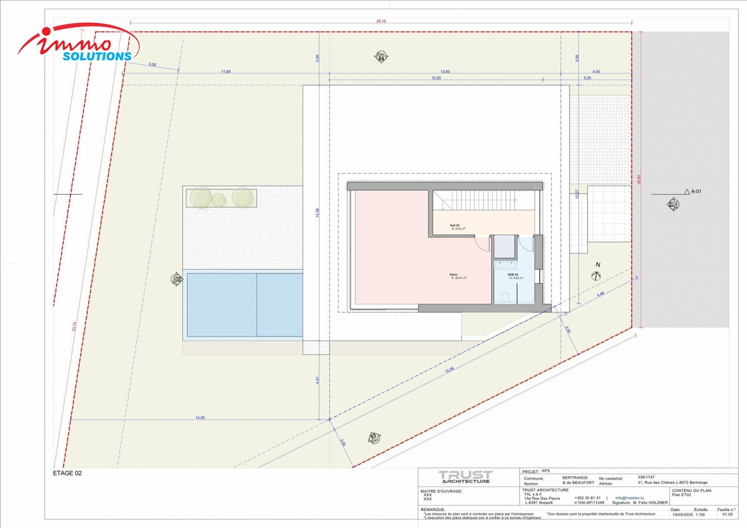
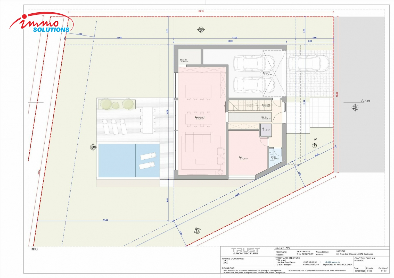
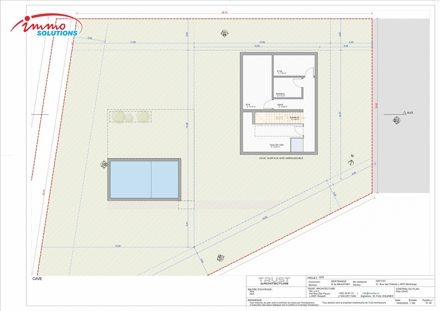
Située dans un quartier résidentiel très prisé de Bertrange, cette maison unifamiliale de haut standing est proposée à la vente sur un terrain de 7,46 ares. Le projet prévoit une surface habitable de ±292 m² et une surface brute construite de ±416 m², réparties sur trois niveaux habitables ainsi qu'un sous-sol complet. Au rez-de-chaussée, vous trouverez un spacieux hall d'entrée, un vaste espace de vie ouvert de près de 59 m² avec salon, salle à manger et cuisine, une salle de sport, un WC séparé, un local de rangement, ainsi qu'un garage intégré de 34 m². Le premier étage offre une suite parentale avec salle de bains privative, trois chambres supplémentaires, deux salles de bains et un hall de nuit. Le deuxième étage en retrait comprend un grand salon lumineux, une salle de bain supplémentaire et un accès à une terrasse de toit (optionnel). Le sous-sol dispose entre autres d'une cave à vin technique, d'une buanderie, de plusieurs espaces de stockage et d'un hall d'accès. Cette maison est dotée d'un ascenseur intérieur, de toitures plates végétalisées, et respecte les prescriptions du PAP Rilpsert IV. Les extérieurs sont entièrement aménagés et comprennent un jardin privatif ainsi qu'une piscine extérieure, tous inclus dans le prix. Le bien est **libre de contrat de construction**, ce qui vous permet de choisir librement l'entreprise avec laquelle vous souhaitez bâtir votre future maison.
Profitez d'un cadre de vie paisible et privilégié, tout en étant à proximité immédiate des commodités, des transports en commun, des deux grands centres commerciaux, et des principaux axes routiers. À quelques minutes de Luxembourg-ville, ce terrain offre une opportunité rare dans un environnement recherché. L'adresse du terrain est 31, rue des Chênes, L-8072 Bertrange. Plans et documentation sur simple demande.
Fiche technique
- 20086408
- 292 m2
- 7,46 ares
- 5
- 4
- 2
- à convenir
- A
- Cave
- Piscine
- Bureau
Localisation géographique
Bertrange, Luxembourg
Ouvrir dans Google Maps
Distance
Cet outil vous permet de calculer la distance entre ce bien et une localité (votre lieu de travail, etc.).
Agent responsable
- Marc Kreitz
- +352691500677
- marc.kreitz@immosolutions.lu
Estimation des frais d’acquisition de ce bien
Calculez GRATUITEMENT les frais de notaires pour l'achat de ce bien grâce au site FraisDeNotaire.lu.
FraisDeNotaire.luDemande de contact
Vous souhaitez être recontacté(e) à propos de ce bien ? Rien de plus simple : complétez le formulaire ci-dessous et un agent prendra contact avec vous dans les meilleurs délais.
Ce bien a été consulté 2627 fois depuis le 27/05/2025.
