BertrangeTerrain
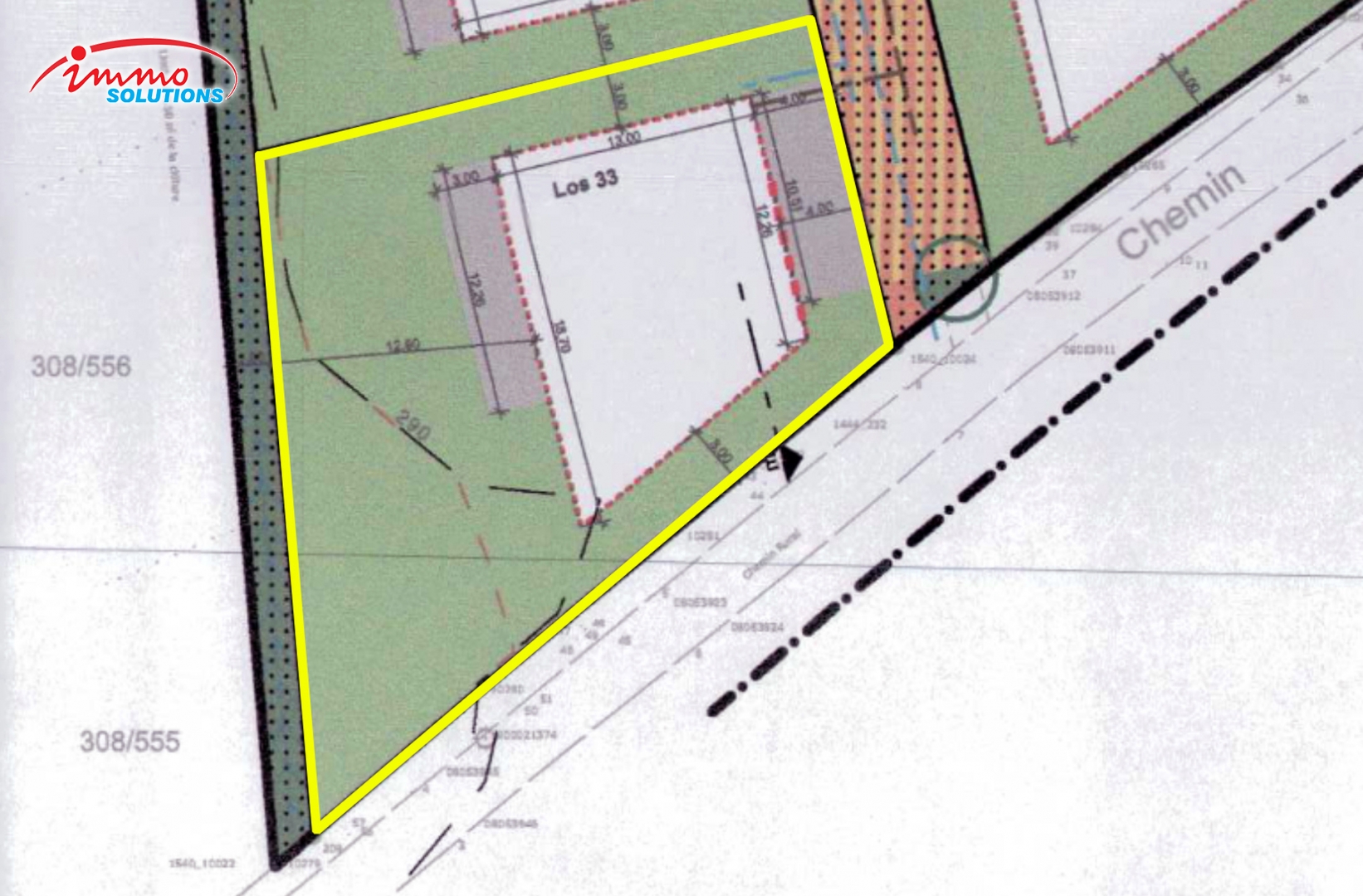
Terrain à bâtir exceptionnel (sans contrat de construction) de 7.46 ares (référence cadastrale 338/1747), idéal pour la construction d'une maison individuelle (libre sur 4 côtés), situé au cœur de la commune prisée de Bertrange. Profitez d'un cadre de vie paisible et privilégié, tout en étant à proximité immédiate des commodités, des transports en commun, des deux grands centres commerciaux, et des principaux axes routiers. À quelques minutes de Luxembourg-ville, ce terrain offre une opportunité rare dans un environnement recherché. L'adresse du terrain est 31, rue des Chênes, L-8072 Bertrange.
Fiche technique
- 20086351
- 7,46 ares
- de suite
Téléchargement(s)
PE_PAP_REF18186.pdfpdfPG coupes MOPO.pdfpdfPG_PAP_REF18186.pdfpdfLocalisation géographique
Bertrange, Luxembourg
Ouvrir dans Google Maps
Distance
Cet outil vous permet de calculer la distance entre ce bien et une localité (votre lieu de travail, etc.).
Agent responsable
- Marc Kreitz
- +352691500677
- marc.kreitz@immosolutions.lu
Estimation des frais d’acquisition de ce bien
Calculez GRATUITEMENT les frais de notaires pour l'achat de ce bien grâce au site FraisDeNotaire.lu.
FraisDeNotaire.luDemande de contact
Vous souhaitez être recontacté(e) à propos de ce bien ? Rien de plus simple : complétez le formulaire ci-dessous et un agent prendra contact avec vous dans les meilleurs délais.
Ce bien a été consulté 4706 fois depuis le 31/08/2024.
